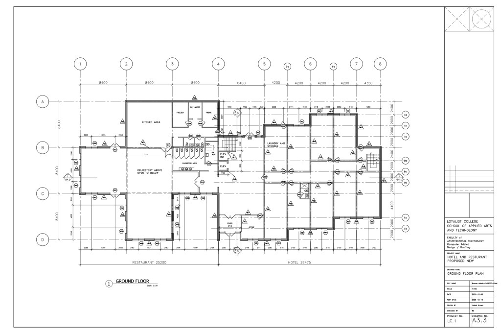
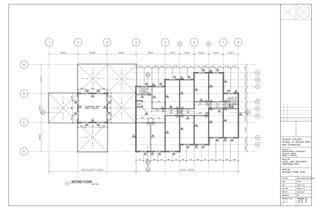
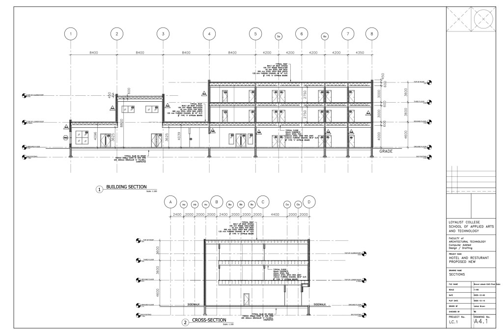
My second year CADD final project at Loyalist College presents a three-storey mixed-use hotel and restaurant. It is proposed for a park-like site along College Street East in Belleville, Ontario. The design integrates a full-service restaurant on the ground floor. It includes a professional kitchen, dining area, foyer, and office. A dramatic clerestory floods the space with natural light. The upper floors accommodate hotel guest rooms, laundry, storage, elevator, and stair access. The building is built on a reinforced concrete foundation. It has a steel-framed superstructure and is finished in brick veneer with masonry accents. It features low-slope built-up roofing. The building has code-compliant circulation and full accessibility. The complete set of professional AutoCAD drawings includes the site plan and foundation. It also has floor plans, roof plan, sections, and elevations. Additionally, wall assemblies and door/window schedules are included. These drawings demonstrate advanced CAD proficiency and functional hospitality design. They also show thoughtful integration with the surrounding pond, perennial gardens, and outdoor seating areas.
Written by
—
×









