

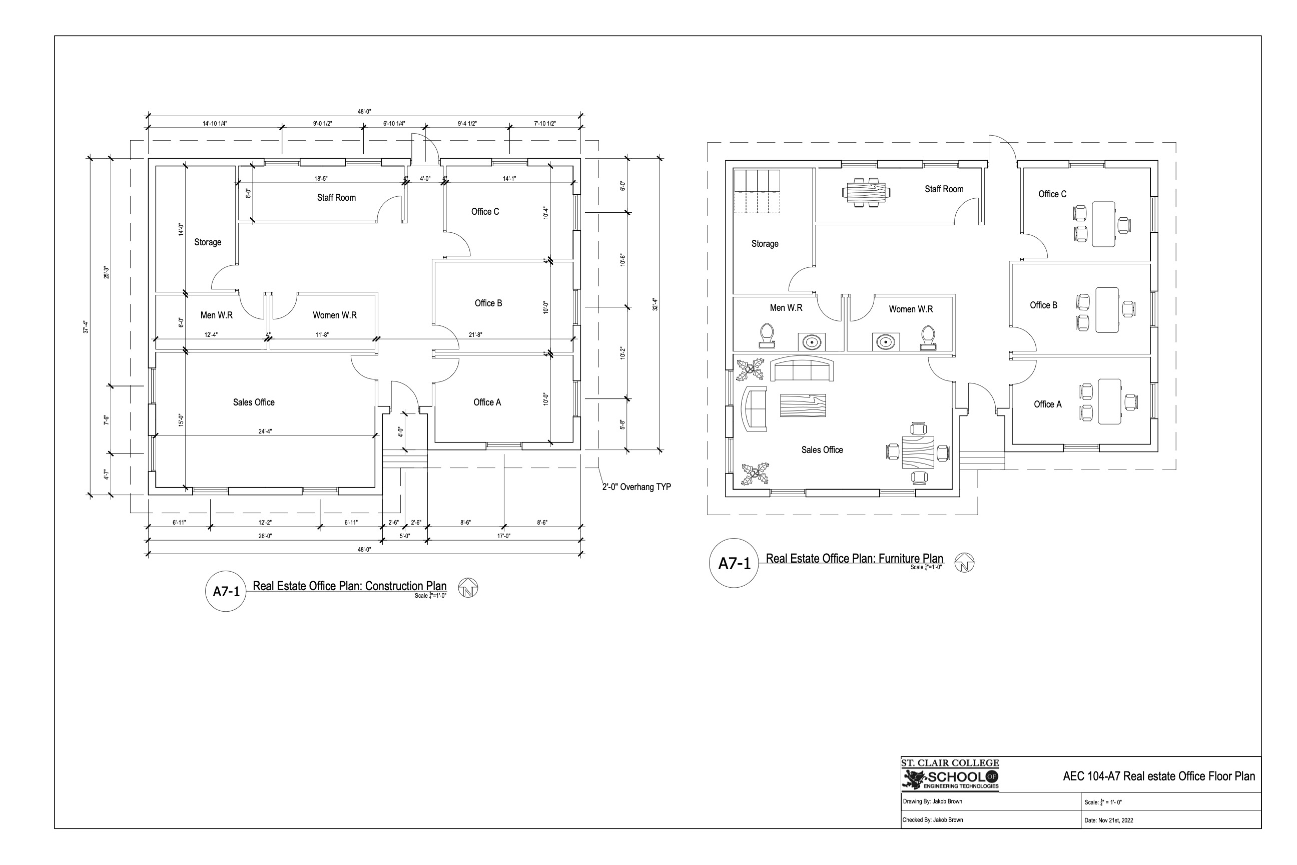
This project presents a complete 3D SketchUp model and professional presentation for a proposed real estate office in Windsor, Ontario. The design delivers a modern and functional commercial building. It is tailored to the needs of a real estate firm. The building emphasizes a professional image, client accessibility, natural daylighting, and efficient office workflow.
The presentation uses high-quality rendered perspectives. It clearly shows the building’s exterior massing, material palette, site response, and interior spatial organization. The office is designed as a welcoming and contemporary workspace. It supports private consultations and open collaborative areas. Additionally, it integrates seamlessly into Windsor’s urban and climatic context.
The SketchUp presentation demonstrates strong proficiency in 3D modeling, rendering, and architectural visualization. It effectively showcases the project’s conceptual clarity and design intent. This is crucial for a real-world commercial application.